Cherrington Way
Solihull, Solihull
4 bedroom
An executive four bedroomed, three bathroomed detached property in the heart of Hillfield. Offering great potential to improve and add value available chain free.
Key Features
- Detached
- Four Bedrooms
- Two Reception rooms
- Fitted Kitchen
- Utility
- Ground Floor WC
- Private Rear Gardens
- Potential To Extend (STPP)
- Tudor Grange Catchment
- Close To Mainline Station
Cherrington Way is located off Chelveston Crescent which is in the heart of the Hillfield Development just a short distance from Solihull Town Centre. Solihull has an excellent choice of shopping facilities together with a wide choice of bars and restaurants, a thriving business community and its own main line London to Birmingham railway station. Closer to the property is Widney Manor Railway Station offering local services and Hillfield Park is close by offering a vast area of public open space, duck pond and children's play area.
Travelling away from Solihull along here you will come to the A34 Stratford Road in Shirley which gives access to the city centre of Birmingham and to junction 4 of the M42 motorway. At junction 6 is access to the National Exhibition Centre, Resorts World, Motorcycle Museum and Birmingham International Airport and Railway Station.
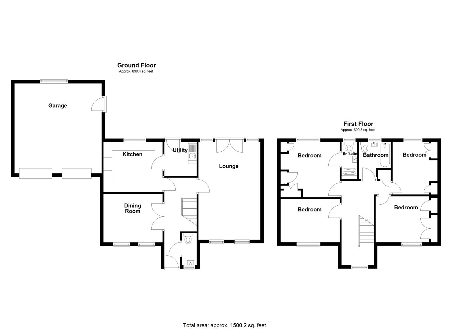
An ideal location therefore for this four bedroomed detached property approached via driveway and fore garden leading to the front door allowing access into the accommodation which comprises of entrance hall, guest cloak room, double glazed doors into the dining room, a large through living room with feature fire place and French doors onto the rear garden. Off the hall is the kitchen, a fitted kitchen and access into the fitted utility with space and plumbing for white goods as well as access into the rear garden.
To the first floor we have four bedrooms one of which has the benefit of an en-suite shower room. All four bedrooms are doubles with three of the four benefitting from fitted storage or wardrobes. Off the landing is the family bathroom and loft access.
To the rear we have a good sized private mature garden with various patio and seating areas and well stocked borders. Access to the double garage can be found via a side and rear door and via up and over doors to the front. The property is complemented by a large drive way affording parking for numerous vehicles and offers a good frontage if more parking was required.
Entrance Hall
Dining Room 2.85 x 3.48 (9'4" x 11'5")
Living Room 5.74 x 3.64 (18'9" x 11'11")
Kitchen 2.65 x 3.48 (8'8" x 11'5")
Utility 1.99 x 1.90 (6'6" x 6'2")
Ground Floor WC
Bedroom One 2.95 x 3.48 (9'8" x 11'5")
En-Suite
Bedroom Two 2.70 x 3.64 (8'10" x 11'11")
Bedroom Three 2.54 x 3.48 (8'3" x 11'5")
Bedroom Four 3.09 x 2.64 (10'1" x 8'7")
Family Bathroom
Double Garage 5.28 x 5.12 (17'3" x 16'9")
Private Rear Gardens
Off Road Parking
TENURE: We are advised that the property is Freehold
These particulars are for general guidance only and are based on information supplied and approved by the seller. Complete accuracy cannot be guaranteed and may be subject to errors and/or omissions. They do not constitute representations of fact or form part of any offer or contract. Any Prospective Purchaser should obtain verification of all legal and factual matters and information from their Solicitor, Licensed Conveyancer or Surveyors as appropriate. The agent has not sought to verify the legal title of the property and the buyers must obtain verification from their solicitor. Photographs are provided for illustrative purposes only and the items shown in these are not necessarily included in the sale, unless specifically stated. The agent has not tested any apparatus, equipment, fixtures, fittings or services mentioned and do not by these Particulars or otherwise verify or warrant that they are in working order.
BROADBAND/MOBILE: Please refer to checker www.ofcom.org.uk for broadband and mobile coverage at the property. From data taken on 12/03/2026 we understand that the standard broadband download speed at the property is around 1000 Mbps, and the estimated fastest download speed currently achievable for the property post code area is around 5000 Mbps. Actual service availability or speeds received may be different and may vary depending on the time a speed test is carried out. Mobile coverage can vary depending on the network provider and other factors that can affect the local mobile reception and actual services available may be different depending on the particular circumstances, precise location and network outages.
MONEY LAUNDERING REGULATIONS: Under anti-money laundering legislation, we are obliged to confirm the identity of individuals and companies and the beneficial owners of organisations and trusts before accepting new instructions, and to review this from time to time. To avoid the need to request detailed identity information from vendors and intending purchasers, we may use approved external services which review publicly available information on companies and individuals. However, should those checks, for any reason, fail adequately to confirm identity, we may write to you to ask for identification evidence. If you do not provide satisfactory evidence or information within a reasonable time, we may have to stop acting for you and we would ask for your co-operation in order that there will be no delay in agreeing a sale. Any purchaser who has a provisional offer accepted via this company will be liable to pay an administration fee of £25 (incl VAT) for each person connected with the transaction to cover these checks. If we are instructed by a third party selling agent they may carry out their own AML checks and any prospective purchaser will be required to pay any additional costs involved – please speak to the office for confirmation.
REFERRAL FEES: We may refer you to recommended providers of ancillary services such as Conveyancing, Financial Services and Surveying. We may receive a commission payment fee or other benefit (known as a referral fee) for recommending their services. You are not under any obligation to use the services of the recommended provider.
Enquire about this property
Similar Properties
-
Lugtrout Lane, Catherine-De-Barnes, Solihull
£700,000 OIROA fantastic four bedroomed dormer style bungalow in a semi rural location on the outskirts of Solihull. With open views, numerous reception rooms, four double bedrooms, and an attractive frontage we expect this property to be popular.434 -
Willow Road, Solihull
£625,000An extended four bedroomed detached property in a most sought after central location offering flexible living over three floors.432 -
Meadow Pleck Lane, Shirley, Solihull
£585,000A Beautifully Presented and Well Maintained Extended Detached Family Home432
-
Cherrington Way, Solihull
£650,000An executive four bedroomed, three bathroomed detached property in the heart of Hillfield. Offering great potential to improve and add value available chain free.422

















































